Kopen in Kruibeke?

Te renoveren woning in centrum Kruibeke

€ 235 000

± 240 m² grondoppervlakte
4 slaapkamers
1 badkamers

Troeven

  • Goede ligging
  • Zonnepanelen
  • Kelder
  • Zij-ingang
Langestraat 106
9150 Kruibeke
Prijs € 235 000
Bouwjaar 1948
Algemene staat Te renoveren
Ref. EPC 20241223-0003468059-RES-2
EPC 469 kWh/m² Label E
Totale opp. ± 240 m²
Bewoonbare opp. ± 249 m²
Niet geïndexeerd KI€ 411
Renovatieverplichting Ja
Langestraat 106, 9150 Kruibeke

Omschrijving

Belangrijk : Momenteel is er en bouwaanvraag lopende om de woning te regulariseren.
Dit houdt in dat de koper het nodige dient te ondernemen om het gebouw aan te passen aan deze vergunning (zie plannen).

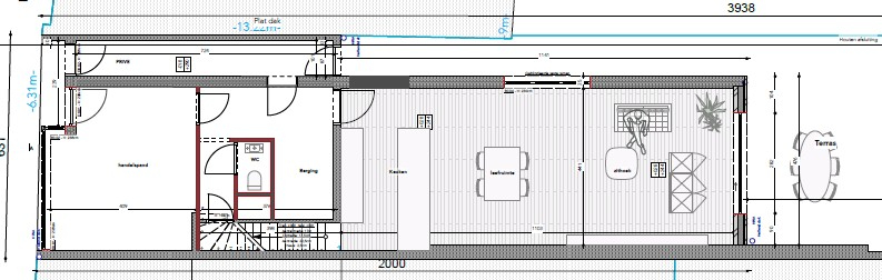
Dit pand betreft een voormalig ijssalon met bijhorende woonst.
Aan de voorzijde van het gebouw bevindt zich de handelsruimte, waar momenteel het ijssalon is gevestigd.
Deze ruimte is uitgerust met airconditioning.

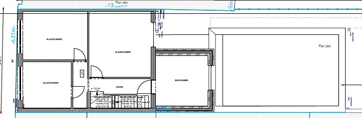
Op de eerste verdieping boven de handelsruimte bevinden zich twee slaapkamers en een badkamer.
Via een vaste trap is de zolder bereikbaar, waar de mogelijkheid bestaat om een extra slaapkamer te creëren.

Achter het ijssalon bevindt zich een ruime achterbouw met een gezellige leefruimte die uitkijkt op de tuin.
De keuken biedt de mogelijkheid om naar eigen smaak ingericht te worden.
De leefruimte is voorzien van een pelletkachel voor extra comfort en een gastentoilet.
Vanuit deze ruimte leidt een trap naar de bovenverdieping van het bijgebouw, waar twee royale kamers zijn gelegen

Zowel het hoofdgebouw als het bijgebouw beschikken over een aparte gasketel en elektriciteitskast.
Op het dak van het bijgebouw zijn zonnepanelen geïnstalleerd.
Daarnaast is de woning voorzien van een zij-ingang die toegang biedt tot de achterliggende tuin.
Er is tevens een droge kelder aanwezig.
De woning dient te worden opgefrist.

EPC woongedeelte: label E: 469 kWh/m² jaar:  20241223-0003468059-RES-2
EPC handelspand: label B: 20241223-0003468132-KNR-2
Bron bewoonbare oppervlakte : EPC - certificaat
Renovatieverplichting residentiële gebouwen van toepassing. Meer info: https://www.vlaanderen.be/een-huis-of-appartement-kopen/renovatieverplichting-voor-residentiele-gebouwen

Heb je zin gekregen om deze woning te komen bekijken? Bel ons op 03/775.78.79.
Ben je ook van plan jouw eigendom te verkopen? Maak een afspraak voor een gratis schatting, wij maken er samen een succesverhaal van.
 

Indeling

Winkelruimte In te richten naar eigen wens
Polyvalente ruimte Praktisch
Keuken -
4x Slaapkamer -
Badkamer Op te frissen
Zolder Op te frissen
Toilet -
Tuin Met zij-ingang
Terras -

Algemene info

Asbest - attest Niet-destructieve asbestinventaris
Asbest - inventaris Asbestveilig
Stedenbouwkundige bestemming Woongebied
Dagvaarding voor stedenbouwkundige overtreding Nog niet meegedeeld
Verkavelingsvergunning Nee
Recht van voorkoop Ja
Bouwvergunning Bouw vergund
Beschermd erfgoed Nee
G(ebouw)-score A
P(erceel)-score A
Overstromingsgevoeligheid Niet overstromingsgevoelig
Afgebakende zone Niet van toepassing

Klaar voor een nieuw verhaal?

Breng vrijblijvend een bezoekje! Of stel ons de vragen waar je nog mee zit.

Of voeg toe aan jouw favorieten
Vlug nog even het kostenplaatje berekenen?

Alle verstrekte informatie is louter informatief en niet bindend, wijzigingen of zetfouten voorbehouden (K55tris/99).

Deze website maakt gebruik van cookies die voor een optimale gebruikerservaring zorgen. Door gebruik te maken van deze website verklaart u dat u hiermee akkoord gaat.