Kopen in Bazel?

Uitzonderlijk ruim woonhuis (± 340 m²) met vergunning voor opsplitsing naar 2 woonunits

€ 489 000

± 399 m² grondoppervlakte
5 slaapkamers
2 badkamers

Troeven

  • Gunstig EPC
  • Ruime garage
  • 340m² bewoonbaar
  • Elektriciteit conform
Rupelmondestraat 147
9150 Bazel
Prijs € 489 000
Bouwjaar 1960
Algemene staat Instapklaar
Oriëntatie tuin West
Ref. EPC 20260408-0003843258-RES-1
EPC 252 kWh/m² Label C
Totale opp. ± 399 m²
Bewoonbare opp. ± 340 m²
Niet geïndexeerd KI€ 1003
Renovatieverplichting Neen
Rupelmondestraat 147, 9150 Bazel

Omschrijving

Op zoek naar een veelzijdig eigendom met enorme bewoonbare oppervlakte én investeringspotentieel?
Deze indrukwekkende woning van maar liefst ca. 340 m² combineert ruimte, functionaliteit en toekomstmogelijkheden.
Een bijzonder grote troef is de reeds aanwezige vergunning voor het opsplitsen naar een meergezinswoning met twee entiteiten, ondersteund door uitgewerkte plannen. Ideaal voor kangoeroewonen, opbrengsteigendom of combinatie wonen/werken.

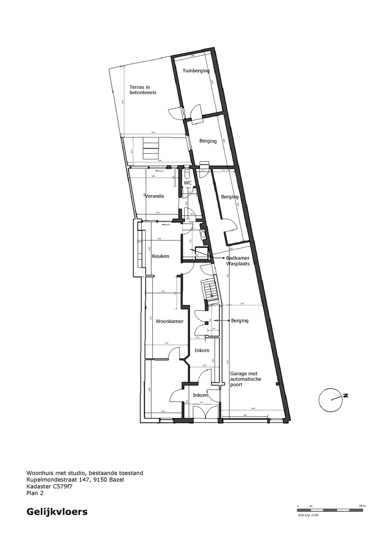
Indeling gelijkvloers – 1-slaapkamerappartement + garagecomplex
Via de ruime gemeenschappelijke inkomhal krijgt men toegang tot het gelijkvloers appartement en de overige ruimtes.
Het instapklare 1-slaapkamerappartement omvat:

  • Aangename leefruimte 
  • Volwaardige keuken met aansluitende uitbreiding/veranda die zorgt voor extra lichtinval en ruimtegevoel
  • Slaapkamer
  • Badkamer
  • Apart toilet
  • Berging
Vanuit de veranda is er directe toegang tot het terras en de tuin, wat dit appartement bijzonder aantrekkelijk maakt.
Verder beschikt het gelijkvloers over een uitzonderlijk ruime garage, ideaal voor meerdere wagens, werkruimte of opslag.
Aansluitend bevinden zich nog diverse functionele ruimtes:
  • Technische ruimte 
  • Tuinberging
  • Extra berging 
    Deze volumes bieden tal van mogelijkheden voor hobby, stockage of werkatelier.
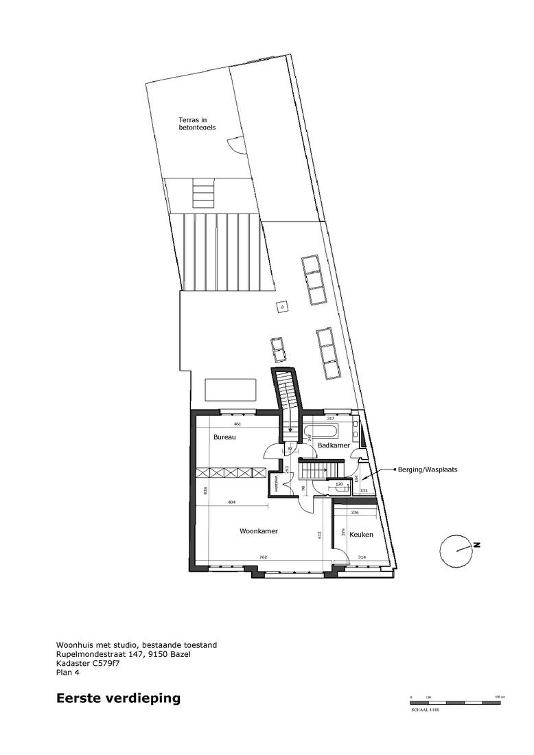
Eerste en tweede verdieping – ruim duplex appartement (4 slaapkamers)
De bovenverdiepingen vormen samen een bijzonder ruim duplex appartement.
Eerste verdieping:
  • Zeer ruime en lichtrijke zitkamer/leefruimte
  • Aparte keuken
  • multifunctionele ruimte, perfect als extra slaapkamers of thuiskantoor
  • Badkamer 
  • Apart toilet
  • Wasplaats/berging
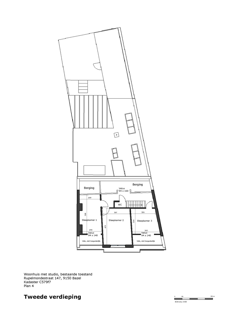
Tweede verdieping
  • 3 volwaardige slaapkamers:
  • Nachthal
  • Extra bergruimtes
  • Apart toilet
Troeven van dit eigendom
  • Totale bewoonbare oppervlakte van ca. 340 m²
  • Vergunning voor opsplitsing naar 2 woonunits
  • Ideaal als investeringspand of kangoeroewoning
  • Grote garage (± 42 m²) + talrijke bergingen
  • Tuin met terras en veranda
  • Veel potentieel voor combinatie wonen/werken
Deze eigendom biedt een zeldzame combinatie van ruimte, flexibiliteit en rendementspotentieel.
Een unieke kans voor wie groot wil wonen of slim wil investeren. Bel nu op 03/775.78.79.
Ben je ook van plan jouw eigendom te verkopen? Maak een afspraak voor een gratis schatting, wij maken er samen een succesverhaal van.

Indeling

Inkomhal -
2x Living -
2x Keuken -
2x Badkamer -
5x Slaapkamer -
Terras -
Tuin -
Garage -
2x Berging -
2x Polyvalente ruimte -
Berging/wasplaats -

Bouwtechnisch

Beglazing Dubbele
Raamwerk Aluminium en hout
Verwarming Pellets en aardgas

Algemene info

Asbest - attest Niet-destructieve asbestinventaris
Asbest - inventaris Niet-asbestveilig
Stedenbouwkundige bestemming In aanvraag
Dagvaarding voor stedenbouwkundige overtreding Nog niet meegedeeld
Verkavelingsvergunning Nog niet meegedeeld
Recht van voorkoop Nee
Beschermd erfgoed Nee
G(ebouw)-score A
P(erceel)-score A
Overstromingsgevoeligheid Niet overstromingsgevoelig
Afgebakende zone Niet van toepassing

Klaar voor een nieuw verhaal?

Breng vrijblijvend een bezoekje! Of stel ons de vragen waar je nog mee zit.

Of voeg toe aan jouw favorieten
Vlug nog even het kostenplaatje berekenen?

Alle verstrekte informatie is louter informatief en niet bindend, wijzigingen of zetfouten voorbehouden (K55tris/99).

Deze website maakt gebruik van cookies die voor een optimale gebruikerservaring zorgen. Door gebruik te maken van deze website verklaart u dat u hiermee akkoord gaat.